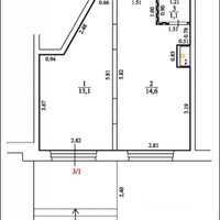
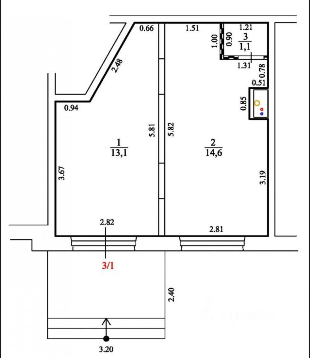
Помещение свободного назначения, 30 м²

Номер лота: 134711825

Москва, Москворечье-Сабурово район, Каширское ш., д.55, к.1

1/11

  • 30 м²

    Общая

  • Прямая продажа
Продам Объект коммерческого назначения! Помещение расположен на 1 этаже жилого многоэтажного дома! Помещение используется под маникюрный салон более 2 лет в большом жилом массиве. Помещение расположен на первой линии Первая линия от Каширского шоссе и примерно в 350м от МЦД D2 Москворечье, Бесплатные парковочные места вдоль второстепенной дороги. Помещение имеет свой отдельный вход и большие витринные окна и место для размещения вывески. В помещении соответственно есть мокрая точка и санузел. В Помещении было произведено капитальный ремонт с заменой труб и электропроводки. Документы на помещение в полном порядке, юридически чистые и готовы к любой форме сделки. Цена за объект указана на прямую от собственника без каких либо наценок от нашей компании. Покупая любую недвижимость через компанию Самолет Плюс вы застрахованы от мошенников и не чистых на руки собственников. А еще, наша компания поможет вам при одобрении кредита на покупку коммерческого объекта.

Подробнее о помещении

  • Общая площадь 30 м²
  • Площадь комнаты №1 14 м²
  • Площадь комнаты №2 16 м²
  • Фонд Нежилой
  • Вход Отдельный с улицы
  • НДС Значение не установлено

Подробнее о доме

  • Вид здания Жилой дом
  • Тип территории Открытая
  • Количество этажей 16

Коммуникации и удобства

  • Отопление Центральное
  • Канализация Централизованная
  • Электричество 15 кВт

Расположение и инфраструктура

Купите в ипотеку

Поиск исполнителей

Выберите услугу, чтобы увидеть
список надёжных компаний

  • Оценка

    Оценка квартир, домов и земельных участков, коммерческих помещений

Похожие помещения