Помещение свободного назначения, 1810 м²

Номер лота: 134639567

Московская область, Красногорский район, Красногорск г., Успенская ул., д.3

1/40

  • 1810 м²

    Общая

  • В

    Энергоэффективность

  • Прямая продажа
  • Онлайн-показ

Продается здание

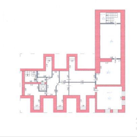
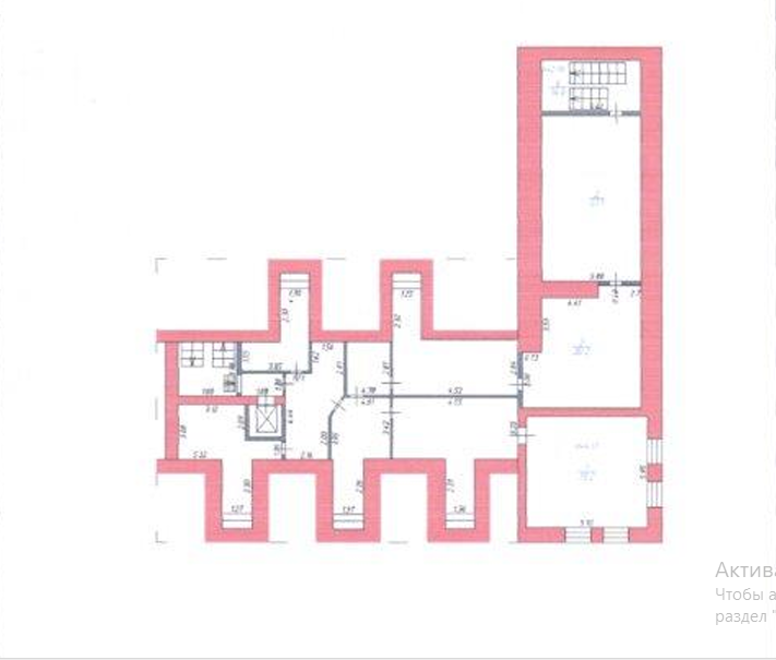
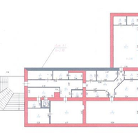
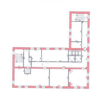
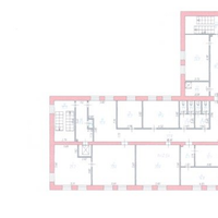
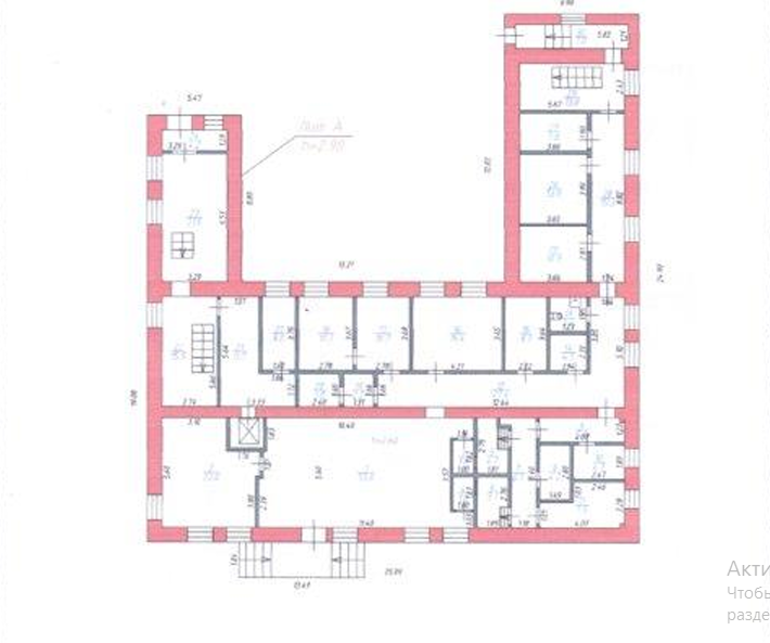
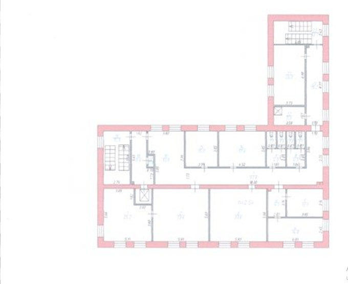
Продается деловой центр "Успенский" общей площадью 1810 м2. на земельном участке 1276 м.кв. Объект и земля находятся в собственности, все коммуникации обслуженные, внутри и снаружи качественный ремонт. 2 входа с улицы и со двора. 60 помещений разной квадратуры на 100% заняты арендаторами, крупные школа танцев и языковая школа. 1-4 этаж: офисная планировка, помещения до 30 кв.м. можно переоборудовать под гостиницу, ВРИ позволяет. Цоколь: зальная планировка, школа танцев. Мансарда технический этаж и административная зона. Здание построено из кирпича и отделано снаружи вентилируемым фасадом, внутри отштукатурено и покрашено, на полу плитка, потолки подвесные. На каждом этаже сан. узел., отдельное помещение под оборудование для вытяжки и электрооборудования, все оборудование в отличном состоянии. Весь штат сотрудников обслуживающих оборудование и помещение есть. Отдельный вход в здание с улицы и со двора. Здание охраняется ЧОП. В здании: отличная приточная вентиляция, центральное отопление, гидрантная система пожаротушения, центральное водоснабжение,150 кВт электроэнергии. Парковка автомобилей - как наземная внутри участка, так и вдоль дороги, парковка на 10 машиномест. 7 мин. транспортом от м. Красногорская, в 8 км от МКАД. Быстрый выход на сделку.

Подробнее о помещении

  • Общая площадь 1810 м²
  • Высота потолков 2.5 м
  • Фонд Нежилой
  • Энергоэффективность В
  • Вход Отдельный с улицы
  • НДС Значение не установлено

Подробнее о доме

  • Вид здания Другой
  • Тип территории Открытая
  • Количество этажей 5

Коммуникации и удобства

  • Отопление Центральное
  • Канализация Централизованная
  • Электричество 150 кВт

Расположение и инфраструктура

Купите в ипотеку

Поиск исполнителей

Выберите услугу, чтобы увидеть
список надёжных компаний

  • Оценка

    Оценка квартир, домов и земельных участков, коммерческих помещений

Похожие помещения